Wir nehmen die Raummaße Ihres Bades bereits 3-dimensional auf. Dies ist notwendig, um die optimale Planung entsprechend Ihrer Wünsche entwickeln zu können.

Im nächsten Step klären wir wichtige Fragen hinsichtlich der technischen Voraussetzungen. Nur so können wir Sie fair und umfassend beraten und eine realistische Kalkulation Ihres Komplettbades erstellen.
Müssen die Fliesen abgestemmt werden? Können wir über vorhandene Fliesen die neuen aufbringen? Wie sind die Rohre beschaffen? Welche Arbeiten müssen ausgeführt werden, um eine handwerklich den Vorschriften entsprechende Leistung erbringen zu können?
Sind diese Fragen beantwortet, können wir anhand unserer Spezial-Software abschätzen, mit welchem Budget Sie rechnen sollten.
Wir entwickeln gemeinsam mit Ihnen mehrere Gestaltungsvarianten Ihres neuen Bades und besprechen die Vorteile jeder Planung. Sie suchen sich dann einfach Ihren Wunschplan aus. Auf dieser Basis können wir zu den bereits ermittelten technischen Vorgaben die „weichen“ Kriterien erfassen: Auf welche Ausstattung legen Sie wert? Wo sollen die Objekte platziert werden?

Nachdem Sie sich für eine Gestaltungsvariante entschieden haben, erstellen wir eine 3D-Ansicht. Mit Hilfe einer 3D-Brille bewegen Sie sich bereits in Ihrem neuen Bad mit den späteren echten Abmessungen. Ist alles so, wie Sie es sich vorgestellt haben? Gemeinsam können wir damit der Bad-Planung den letzten Schliff geben.
3D-Simulation
Mittels einer 3D-Simulation können Sie sich virtuell durch Ihr Bad bewegen.
Welche Farben bevorzugen Sie? Wünschen Sie es sich puristisch modern oder eher klassisch? Lieber natürlicher Lehmputz oder fugenfreie Wandgestaltung aus Acryl? Sie haben bei Objekten und Materialien die große Auswahl. Wir freuen uns darauf, gemeinsam mit Ihnen Ihr Bad zu gestalten.

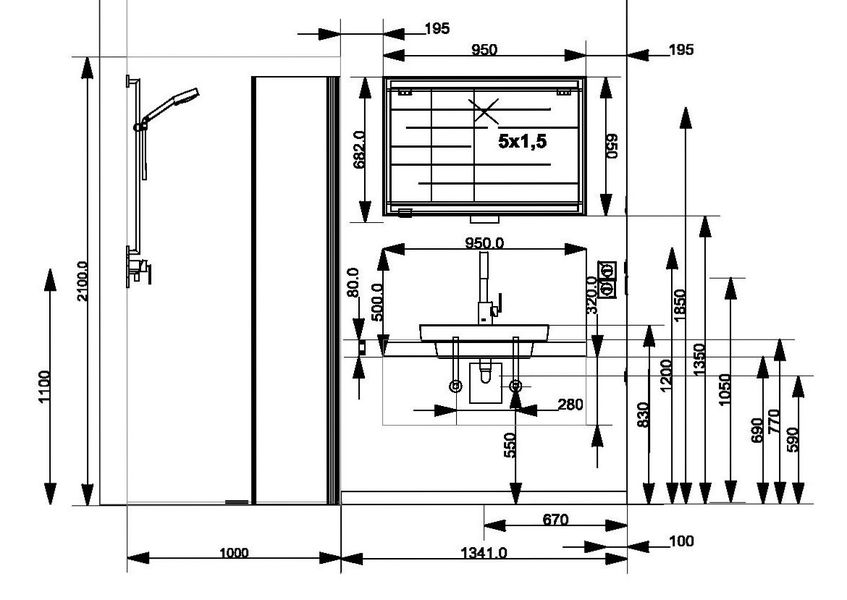
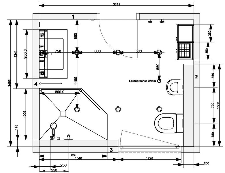
Alles am richtigen Platz: Eine Ausführungsplanung stellt sicher, dass die Sanitärgegenstände so montiert werden, wie wir es gemeinsam geplant haben. So können beispielsweise die Höhen der Objekte, Steckdosen und des Fliesenspiegels aus der Ausführungsplanung entnommen werden.
-
-
Im Grundriss sehen Sie alle Gegenstände maßgenau eingezeichnet. Einschließlich der Deckeneinbaustrahler.
-
-
In der Wandansicht sehen Sie alle notwendigen Einbaumaße, danach kann man arbeiten.
Je besser die Arbeitsvorbereitung, desto kürzer die Ausführungs- und Montagezeit bei Ihnen zu Hause. Damit Sie immer genau wissen, wer wann wie lange zu Ihnen kommt, hält Sie unsere Online-Terminplanung auf dem neuesten Stand. Der Terminplan informiert Sie über alle Schritte bis zum fertig gestellten Bad. Sie können jederzeit den aktuellen Bauzeitenplan, alle Baupläne und unsere Aktennotizen online einsehen.

Damit Sie auf der sicheren Seite sind, erhalten Sie eine Gewährleistung von fünf Jahren auf Ihr neues Komplettbad. Als Ihr Vertragspartner steht das Unternehmen Kirschbaum Bäder und Heizsysteme für diese Frist ein. Im Fall einer Geltendmachung von Ansprüchen haben Sie also nur einen Ansprechpartner, der die Sache für Sie regelt.
Wir arbeiten nach BGB (Bürgerliches Gesetzbuch) und rechnen mit Ihnen Einzel– oder Globalpauschal ab – wie Sie es wünschen.